︎
bastage
construction
built
BAST
unbuilt
communication
opportunites
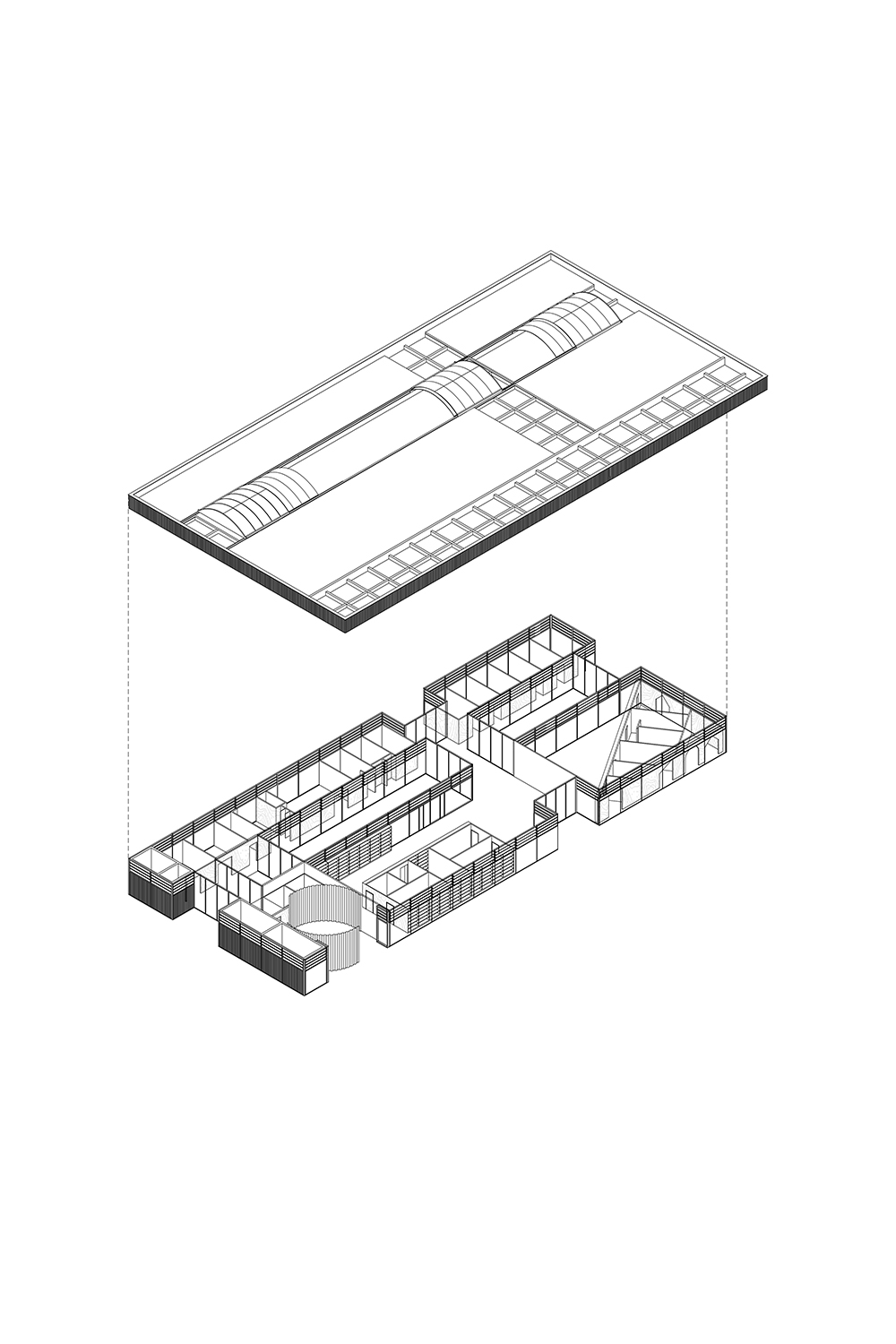
E39 pôle multiservice, 725m2, 1,8M€ht,
Laguiole (FR 12)
, 2019, avec
Betillon & Freyermuth