︎
bastage
construction
built
BAST
unbuilt
communication
opportunites
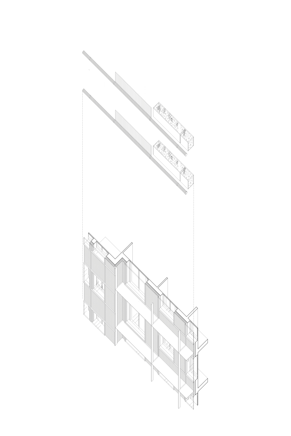
L36 requalification du site Ourcq Léon Giraud, 32 319 m2, 31,8M€ht, Paris
(FR 75),
2023, avec
NP2F