︎
bastage
construction
built
BAST
unbuilt
communication
opportunites
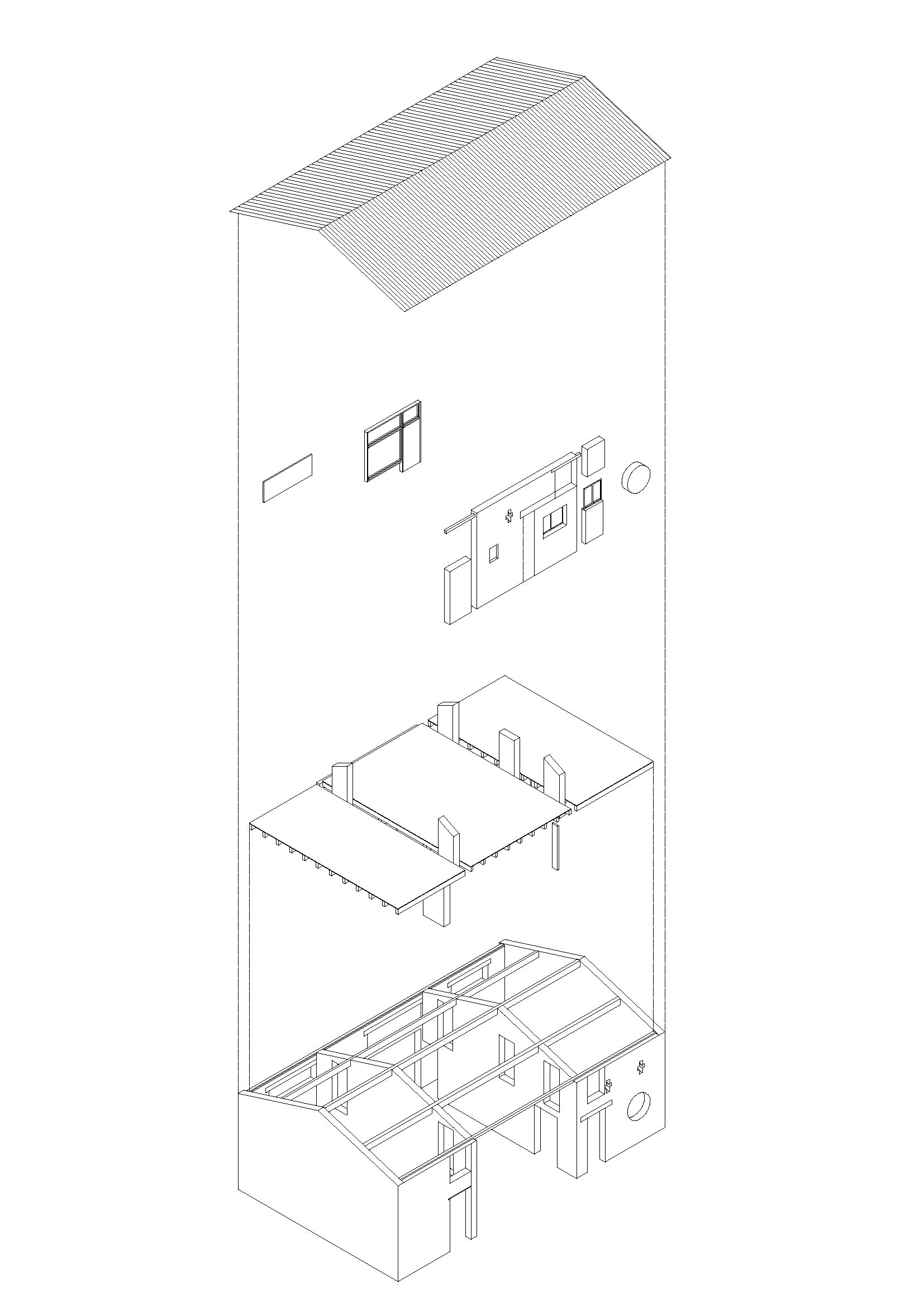
M39 transformation d’une grange en maison de vacances, 162m2, 228 000€ht,
Toulouse (FR 31),
2025